國標無導流孔平板閘閥
產品概況
產品型號:Z6s43(4)WF(Y、H)
公稱通徑:DN50~700mm,NPS2"~28"
公稱壓力:PN1.0~16.0MPa,Class150~900Lb
適用溫度:"G"型(-29~250℃),"D"型(-45~121℃),普通型(-29~121℃)
設計標準:API 600、API6D、ASME B16.34、GB/T 12234
結構長度:ASME B16.10、API6D、GB/T 12221
連接標準:ASME B16.5、ASME B16.47、GB/T 9113、JB/T 79、HG/T 20592
壓力試驗:API 598、GB/T 13927、JB/T 9092
壓力-溫度等級:ASME B16.34 、GB/T 12224
國標無導流孔平板閘閥產品特點
百鋼閥門集團生產銷售的國標無導流孔平板閘閥具有密封性能可靠、啟閉力矩小、具有抗硫耐磨、使用壽命長、可通毛球清掃管線等特點;適用水、石油、天然氣、蒸汽等非腐蝕性和腐蝕性介質的管路系統中作啟閉裝置,特別適用于石化、油、氣、長輸管線等領域。
|
公稱壓力 |
|
產品型號 |
|
1.0~16.0MPa |
無導流孔 |
Z6s43WF、Z6s43WD、Z6s43WY、Z6s43WbF、Z6s43WbY |
|
有導流孔 |
Z6s43NF、Z6s43DF、Z6s43YF、Z6s43F、Z6s43D、Z6s43Y |
國標無導流孔平板閘閥性能規范
|
壓力等級 |
常溫下壓力試驗(MPa) |
適用溫度(℃) |
適用介質 |
|||||||
|
殼體 |
左密封 |
右密封 |
低壓密封 |
"G"型 |
"D"型 |
普通型 |
"KZ"型 |
"Z"型 |
||
|
公稱壓力 |
1.0 |
1.5 |
1.1 |
1.1 |
0.6 |
-29~250 |
-45~121 |
-29~121 |
含H2S和CO2 |
石油、天然氣、水等 |
|
1.6 |
2.4 |
1.76 |
1.76 |
0.6 |
||||||
|
2.5 |
3.75 |
2.75 |
2.75 |
0.6 |
||||||
|
4.0 |
6.0 |
4.4 |
4.4 |
0.6 |
||||||
|
6.4 |
9.6 |
7.04 |
7.04 |
0.6 |
||||||
|
10.0 |
15.0 |
11.0 |
11.0 |
0.6 |
||||||
|
16.0 |
24.0 |
17.6 |
17.6 |
0.6 |
||||||
|
磅級 Lb |
150 |
2.93 |
2.07 |
2.07 |
0.6 |
|||||
|
300 |
5.52 |
5.52 |
5.52 |
0.6 |
||||||
|
400 |
10.0 |
7.31 |
7.31 |
0.6 |
||||||
|
600 |
15.0 |
11.03 |
11.03 |
0.6 |
||||||
|
900 |
22.4 |
16.54 |
16.54 |
0.6 |
||||||
國標無導流孔平板閘閥主要零件材料
|
零件名稱 |
閥體、閥蓋 |
閘板 |
閥桿 |
閥座 |
閥桿螺母 |
密封圈 |
填料 |
密封指 |
|
"Z"型 |
WCB |
合金鋼(特殊處理) |
不銹鋼 |
合金鋼(特殊處理) |
鋁青銅 |
填充四氟 |
填充四氟、膨脹石墨 |
耐油密封脂 |
|
"KZ"型 |
抗硫不銹鋼 |
抗硫密封脂 |
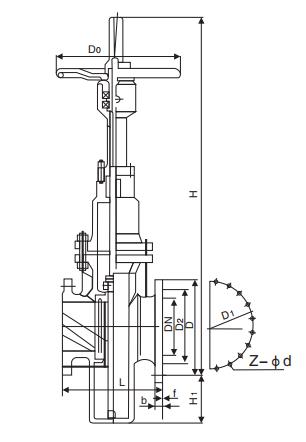
國標無導流孔平板閘閥主要外形尺寸

|
DN |
PN16 |
PN40 |
PN40 |
PN100 |
PN160 |
900Lb |
|
50 |
178 |
216 |
250 |
292 |
280 |
330 |
|
65 |
190 |
241 |
280 |
330 |
315 |
356 |
|
80 |
203 |
283 |
310 |
356 |
380 |
381 |
|
100 |
229 |
305 |
350 |
432 |
425 |
457 |
|
125 |
254 |
381 |
400 |
508 |
480 |
559 |
|
150 |
267 |
403 |
450 |
559 |
530 |
610 |
|
200 |
292 |
419 |
550 |
660 |
620 |
737 |
|
250 |
330 |
457 |
650 |
787 |
730 |
838 |
|
300 |
356 |
502 |
750 |
838 |
850 |
965 |
|
350 |
381 |
762 |
850 |
889 |
980 |
1029 |
|
400 |
406 |
838 |
950 |
991 |
1100 |
1130 |
|
450 |
432 |
914 |
1050 |
1092 |
1200 |
1219 |
|
500 |
457 |
991 |
1150 |
1194 |
1250 |
1321 |
|
600 |
508 |
1143 |
1350 |
1397 |
1450 |
1549 |
|
700 |
610 |
1346 |
1450 |
|
|
|
溫馨提示:
本文中所有文字、數據、圖片均只適用于參考。需要查看更多的國標無導流孔平板閘閥性能參數、結構尺寸參數、價格等詳情,或要求高質量印刷樣本,請聯系我們。